Если цена в объявлении изменится, мы сразу сообщим вам об этом на электронную почту.
Нажимая «Подписаться», вы соглашаетесь с правилами.
продам 2-к, Олимпийская, 95 711 000 ₽
1 фев 2025
Дата публикации объявления
Обн. 11 мая
Дата обновления объявления
4
Количество просмотров (+ просмотры за сегодня)
Спецпредложение
Турбо x8
86 009 ₽/м²
Чистая продажа
Термин "Чистая продажа" означает, что в квартире никто не прописан или
есть куда выписаться и вывезти вещи. Это лучший вариант для покупателя.
Вероятность срыва сделки минимальна.
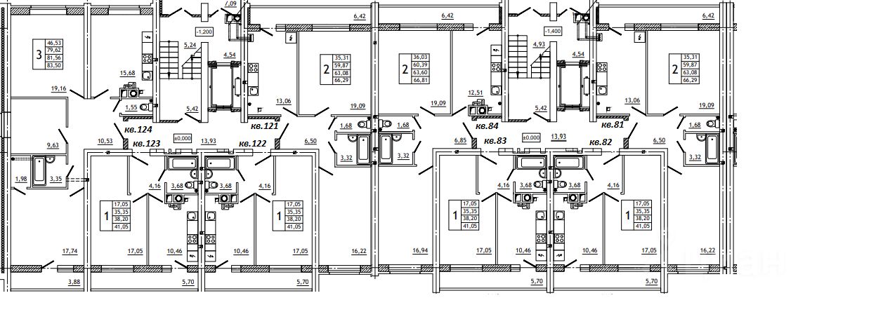
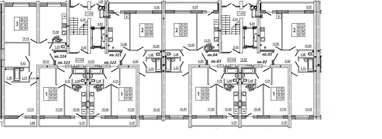
Квартира
Общая площадь66,4 м2
Жилая площадь36 м2
Кухня12,5 м2
Тип собственностисвидетельство о праве собственности