В избранном
В избранное
Пожаловаться
Напечатать
Следить за ценой

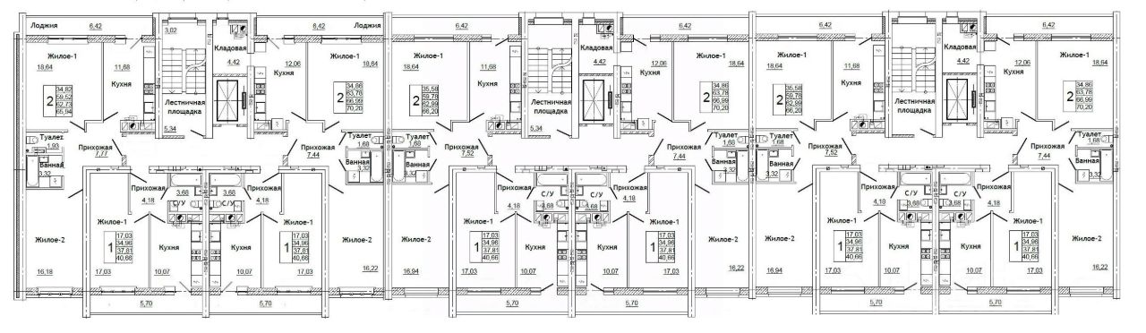
продам 1-к, Новосельцы (Гнездовское с/пос), 194 162 000 ₽

29 мая 2025
Обн. вчера
1
102 010 ₽/м²
  • Чистая продажа