Если цена в объявлении изменится, мы сразу сообщим вам об этом на электронную почту.
Нажимая «Подписаться», вы соглашаетесь с правилами.
продам 2-к, Алтуховка6 063 000 ₽
29 мая 2025
Дата публикации объявления
Обн. 14 мая
Дата обновления объявления
1
Количество просмотров (+ просмотры за сегодня)
Спецпредложение
Турбо x8
86 000 ₽/м²
Чистая продажа
Термин "Чистая продажа" означает, что в квартире никто не прописан или
есть куда выписаться и вывезти вещи. Это лучший вариант для покупателя.
Вероятность срыва сделки минимальна.
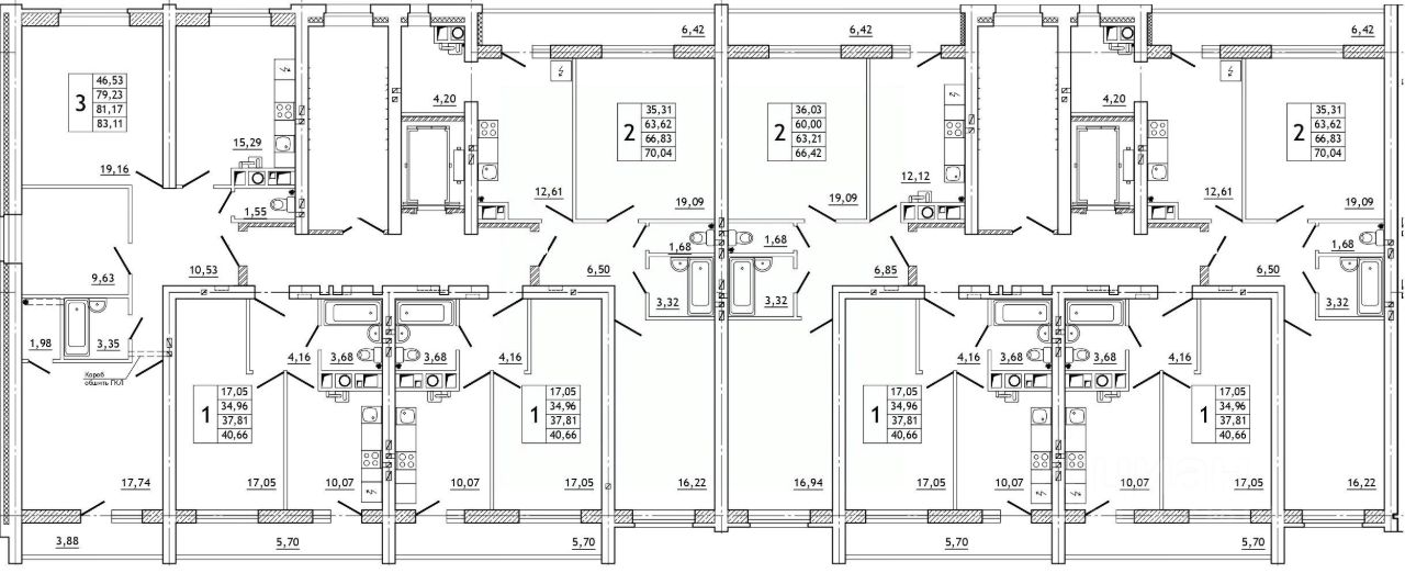
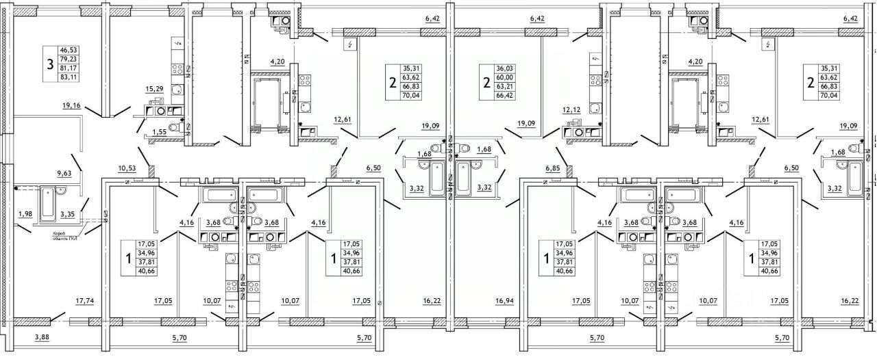
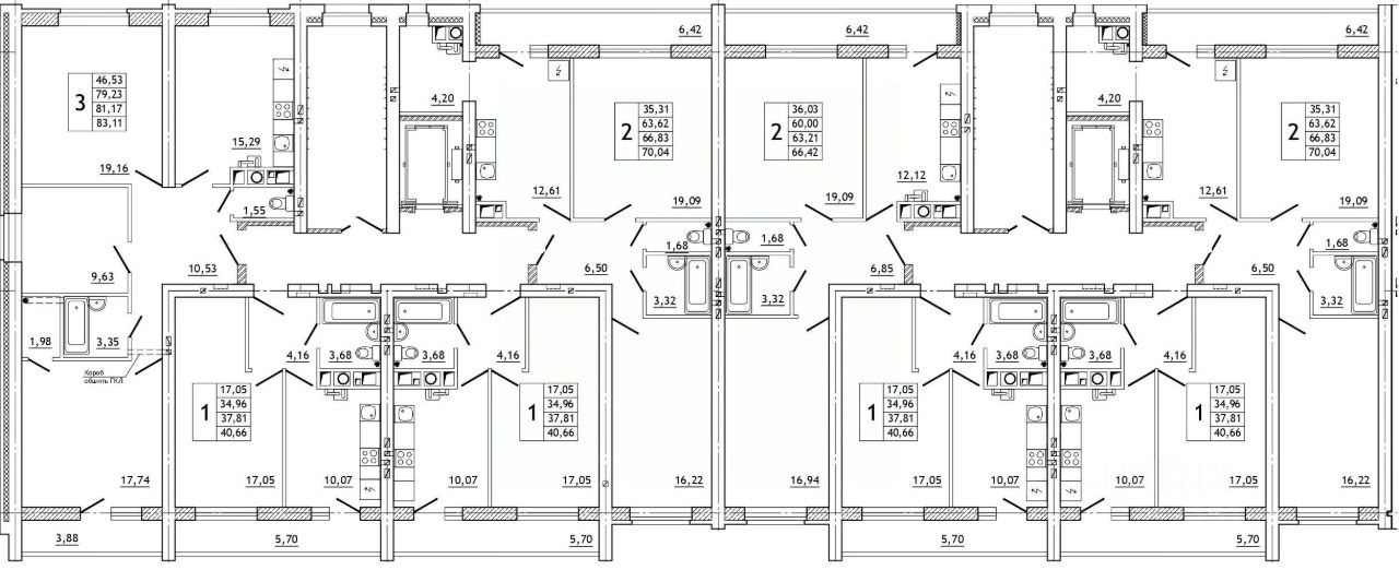
Квартира
Общая площадь70,5 м2
Жилая площадь35,3 м2
Кухня12,6 м2
Тип собственностисвидетельство о праве собственности