Если цена в объявлении изменится, мы сразу сообщим вам об этом на электронную почту.
Нажимая «Подписаться», вы соглашаетесь с правилами.
продам 2-к, Алтуховка6 055 000 ₽
29 мая 2025
Дата публикации объявления
Обн. 16 мая
Дата обновления объявления
1
Количество просмотров (+ просмотры за сегодня)
Спецпредложение
Турбо x8
86 009 ₽/м²
Чистая продажа
Термин "Чистая продажа" означает, что в квартире никто не прописан или
есть куда выписаться и вывезти вещи. Это лучший вариант для покупателя.
Вероятность срыва сделки минимальна.
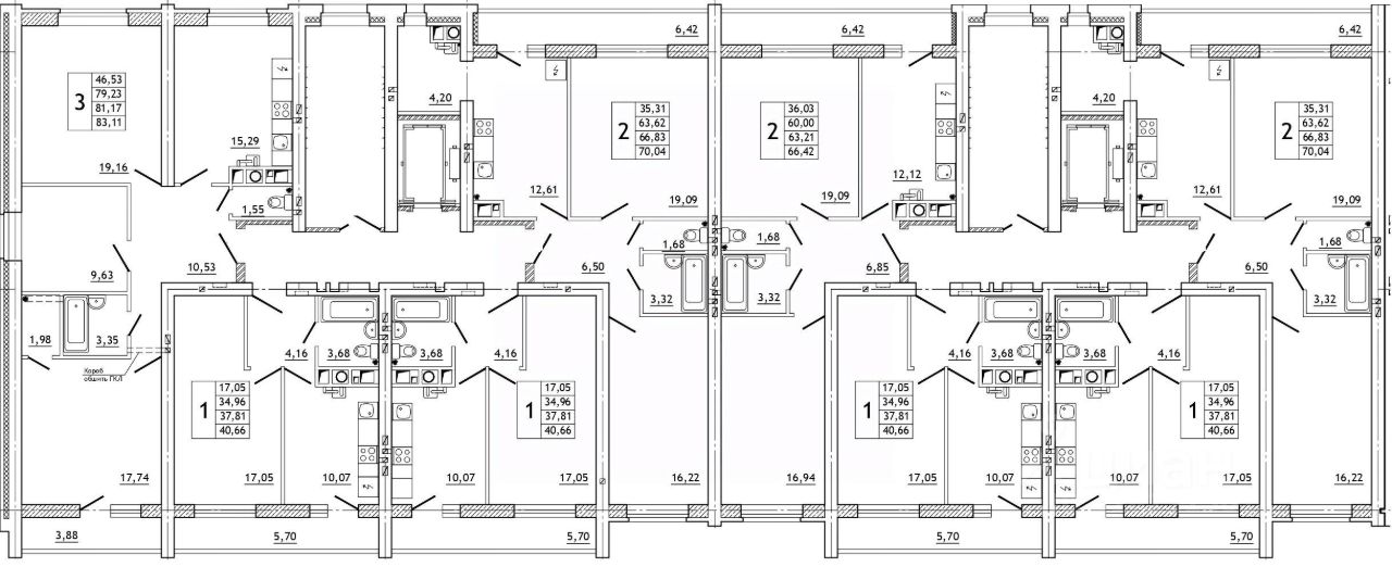
Квартира
Общая площадь70,4 м2
Жилая площадь35,3 м2
Кухня12,6 м2
Тип собственностисвидетельство о праве собственности
Дом
Этаж7 из 10
Материал домакирпич
Квартира 105 в кирпичном доме от надежного застройщика