Если цена в объявлении изменится, мы сразу сообщим вам об этом на электронную почту.
Нажимая «Подписаться», вы соглашаетесь с правилами.
продам 3-к, Крупской, 54б10 779 000 ₽
29 мая 2025
Дата публикации объявления
Обн. сегодня
Дата обновления объявления
5
Количество просмотров (+ просмотры за сегодня)
Спецпредложение
Турбо x8
108 006 ₽/м²
Чистая продажа
Термин "Чистая продажа" означает, что в квартире никто не прописан или
есть куда выписаться и вывезти вещи. Это лучший вариант для покупателя.
Вероятность срыва сделки минимальна.
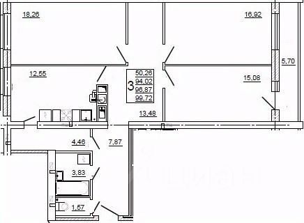
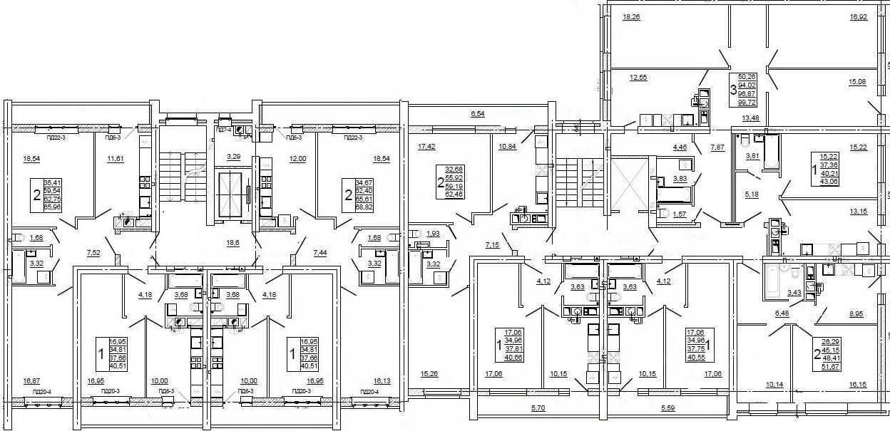
Квартира
Общая площадь99,8 м2
Жилая площадь50,3 м2
Кухня12,6 м2
Тип собственностисвидетельство о праве собственности