Если цена в объявлении изменится, мы сразу сообщим вам об этом на электронную почту.
Нажимая «Подписаться», вы соглашаетесь с правилами.
продам 2-к, Крупской, 54б7 912 000 ₽
29 мая 2025
Дата публикации объявления
Обн. 11 мая
Дата обновления объявления
3
Количество просмотров (+ просмотры за сегодня)
Спецпредложение
Турбо x8
115 000 ₽/м²
Чистая продажа
Термин "Чистая продажа" означает, что в квартире никто не прописан или
есть куда выписаться и вывезти вещи. Это лучший вариант для покупателя.
Вероятность срыва сделки минимальна.
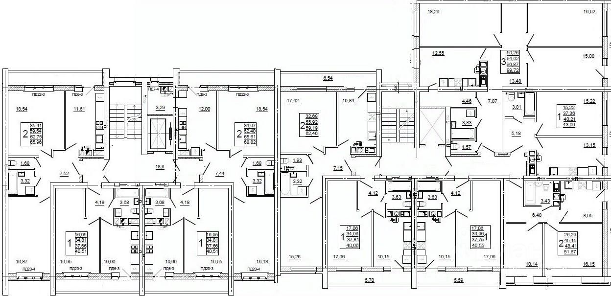
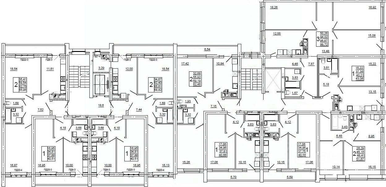
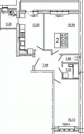
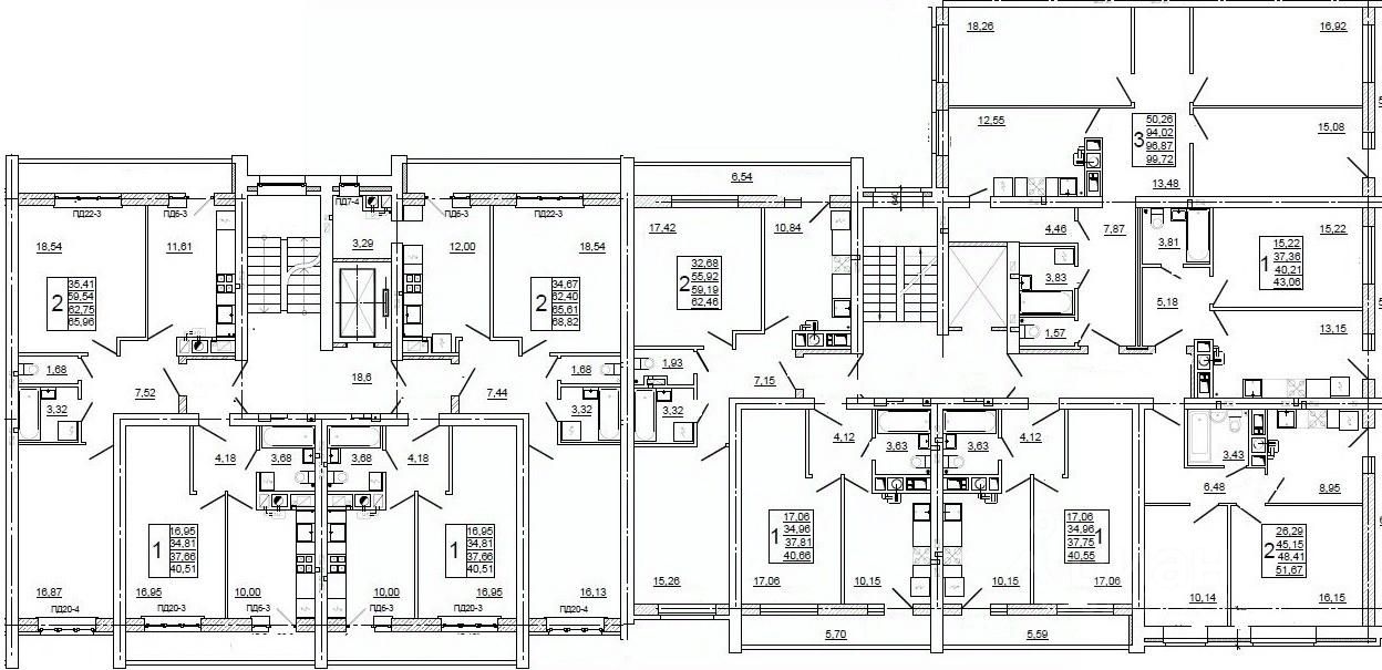
Квартира
Общая площадь68,8 м2
Жилая площадь34,7 м2
Кухня12 м2
Тип собственностисвидетельство о праве собственности