Если цена в объявлении изменится, мы сразу сообщим вам об этом на электронную почту.
Нажимая «Подписаться», вы соглашаетесь с правилами.
продам 2-к, Крупской, 54б7 234 000 ₽
29 мая 2025
Дата публикации объявления
Обн. 28 апр
Дата обновления объявления
7
Количество просмотров (+ просмотры за сегодня)
Спецпредложение
Турбо x8
115 008 ₽/м²
Чистая продажа
Термин "Чистая продажа" означает, что в квартире никто не прописан или
есть куда выписаться и вывезти вещи. Это лучший вариант для покупателя.
Вероятность срыва сделки минимальна.
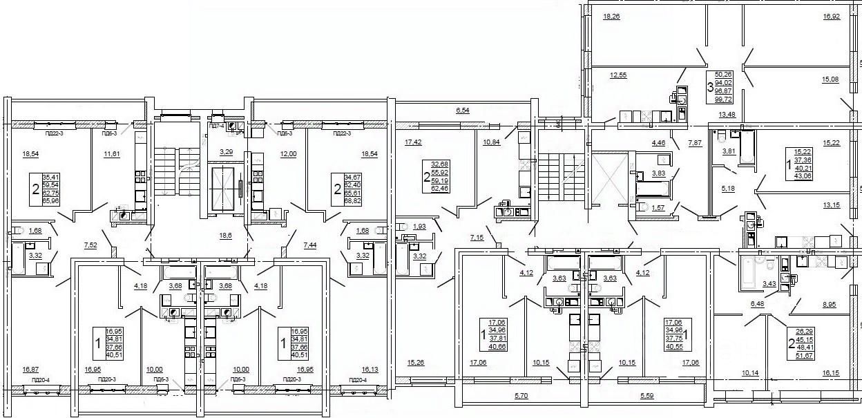
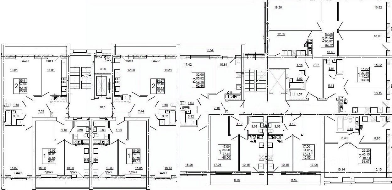
Квартира
Общая площадь62,9 м2
Жилая площадь32,7 м2
Кухня10,8 м2
Тип собственностисвидетельство о праве собственности