Продам квартиру в районе ТРЦ МАКСИ!
Отличная квартира для большой и дружной семьи в кирпичном дома с отличной локацией- школы, детские сады, транспорт, магазины и супермаркеты, пвз Озон и Валдберис, ТРЦ МАКСИ, Парк 1100-летия Смоленска с озером и зоной отдыха и зоной занятий спортом-все рядом!
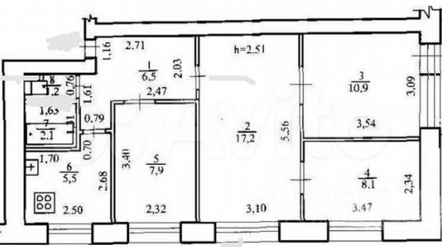
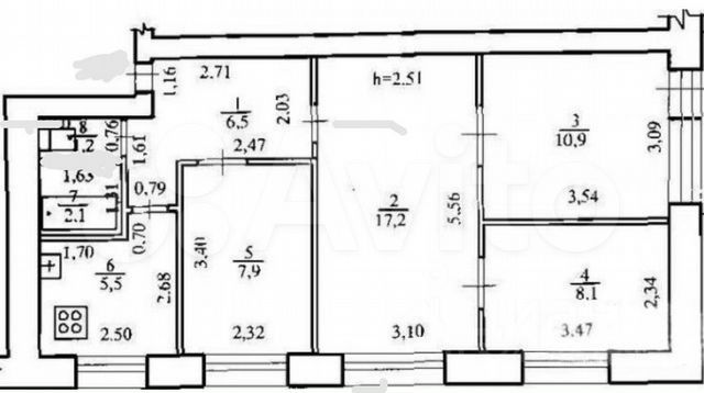
Теплая и светлая квартира на комфортном 5 этаже(крыша не течет)ждет своих новых владельцев. 3 спальни, большой зал, с/у раздельный, просторная прихожая, функциональная кухня.
Состояние жилое, все окна пвх, разводка воды -пластик, счетчики установлены.
3 взрослых собственника. Без долгов и обременений.
Показ по договоренности.
,,,,,,,,,,,,,,,,,,,,,,,,,,,,,,,,,,,,,,,,,,,,,,,,
Александр Владимирович




















