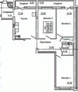
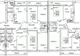
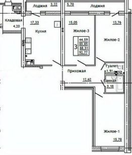
2-к, Юбилейная, 5а Показать на карте
д. Новосельцы (Козинское сельское поселение)
Квартира 133 в кирпичном доме от надежного застройщика
65 м2
4 / 10 этаж
Бетонные блоки
- Показать контакты
- Добавить в избранное
65 м2
4 / 10 этаж
Бетонные блоки
6 578 000
100 000 /м2
Новостройка,
III-2026
III-2026
