2-к, Дорогобуж Показать на карте
Дорогобуж
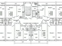
Продается двухкомнатная квартира 48 с черновой отделкой в ЖК ''Спортивный'' площадью 72.2 на 4 этаже от застройщика Консоль девелопмент.Жилой комплекс ''Спортивный'' в Смоленской области, г. Дорогобуж - многоквартирный 5-ти этажный жилой дом.
72 м2
4 / 4 этаж
Кирпич
- Показать контакты
- Добавить в избранное
72 м2
4 / 4 этаж
Кирпич
5 179 020
71 732 /м2
Новостройка,
дом сдан
дом сдан
