3-к, 25 Сентября, 14/47 Показать на карте
Промышленный район
Смоленск
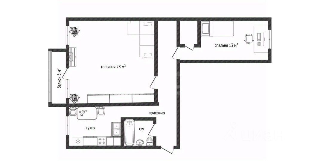
Продается великолепная квартира с индивидуальным отоплением площадью 110 кв . м. в самом сердце города — идеальное место для большой семьи, где каждый найдет свой уютный уголок.Расположенная на 9 этаже 10-этажного кирпичного дома, эта квартира предлагает непередаваемые виды на город и комфорт, о котором вы мечтали. Общая планировка включает три раздельные комнаты (15, 15 и 13,3 кв. м), просторную кухню-гостиную (31 кв. м) и два санузла (5,7 и 2,9 кв. м). Окна выходят на две стороны, обеспечивая хорошую естественную освещенность и проветриваниеДве застекленные лоджии (6,5 и 3,06 кв. м) увеличивают полезное пространство и позволяют наслаждаться видом на город.В квартире выполнен хороший ремонт: теплые полы в прихожей, санузлах и кухне-гостиной, высокие потолки. Кухня оборудована встроенной мебелью и техникой, которая, практически вся, остается в квартире - это позволяет заселиться сразу после покупки.Индивидуальное отопление дает возможность регулировать температуру, что позволяет снижать затраты на коммунальные услуги. На лестничной площадке всего две квартиры, что гарантирует тишину и спокойствие.Дом находится в районе с развитой инфраструктурой: в пешей доступности магазины, кафе, рестораны, медицинские учреждения и культурные объекты. Вблизи расположен Медицинский университет, остановки общественного транспорта и основные магистрали, что обеспечивает удобную транспортную доступность. Территория дома огорожена, также предусмотрена большая парковка с современным видеонаблюдением, что обеспечивает безопасность и спокойствие.Покупая недвижимость через федеральн Код пользователя: 164718Номер в базе: 4228074
109 м2
9 / 10 этаж
Кирпич
- Показать контакты
- Добавить в избранное
109 м2
9 / 10 этаж
Кирпич
12 400 000
113 553 /м2
