2-к, Юбилейная, 19 Показать на карте
д. Новосельцы (Козинское сельское поселение)
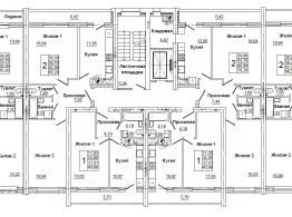
д. Новосельцы, Смоленская область, 2 - эт. 2 187
66 м2
2 / 10 этаж
Кирпич
- Показать контакты
- Добавить в избранное
66 м2
2 / 10 этаж
Кирпич
6 214 000
94 009 /м2
Новостройка,
II-2026
II-2026
