1-к, Юбилейная, 19 Показать на карте
д. Новосельцы (Козинское сельское поселение)
д. Новосельцы, Смоленская область, 2 - эт. 5 197
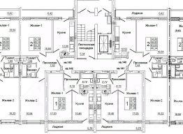
40 м2
5 / 10 этаж
Кирпич
- Показать контакты
- Добавить в избранное
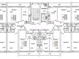
40 м2
5 / 10 этаж
Кирпич
4 080 000
100 000 /м2
Новостройка,
II-2026
II-2026
